西尾市 I・T様 お化粧リフォーム
| お客様のご要望 | ・父親が他界し、母親のみの1人暮らしになってしまった為私達(若世帯)が一緒に住むことに。ただ何とかなると思って越しては来ましたが、やはり平屋で子供も含め6人で住もうと思うと狭く、10坪ある横屋があっても数年すれば子供達の部屋の事もあるので、高齢の母へバリアフリーの環境も作ってあげたかったのでリフォームを依頼しました。間取りや内装はこれから一番使っていく嫁さんに一認。(ご主人) ・とにかく収納を増したい。あとリビングで団らんできる明るいお部屋にしたい。(奥様) |
|---|
|
施工事例データ
| 住所 | 愛知県西尾市 |
|---|---|
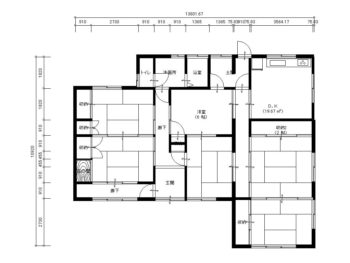
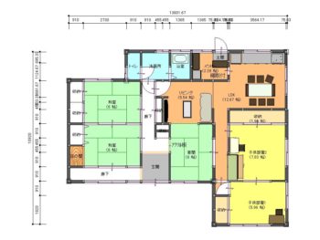
| 施工箇所 | LDK・水まわり・子供室 |
| 住宅形態 | 戸建て |
| リフォーム面積 | 79.7㎡→79.7㎡ |
| 施工内容 | LDKリフォーム・子供室リフォーム |
| 費用 | 約622万円 |
| 工期 | 約33日 |
| 築年数 | 36年 |
| 使用商材 | キッチン(オリジナル)床(無垢パイン)天井壁(サンゲツAA) |
| ご提案内容 |
家族構成や今後の生活スタイルを間取りを決める前にヒアリングしていたので奥様の家事動線(特に水まわり)と壁の厚み(10㎝)まで細部にこだわった収納をご提案しました。 日中も暗い居間を明るくする方法を色々話し合いましたがその結果こう配天井にしトップライトを設けることになりました。 |
|---|


リフォームされたお客様の声
・今まで細かく部屋を仕切っていた戸や壁を外したり高くしたことで今までとは比べものにならない程広く感じ開放感があります。
・居間の天井をグッと高くした事、トップライトを取り付けた事がきっと1番の変化と良かったことです。
・収納も本当にあっちこっち考えて決めていったので今まで出しっ放しになっていたものも全て片付きました。
・手を入れた部屋はすべてバリアフリーになったおかげで母の事も少し安心して見守ることができそうです。
・床をパインに、壁を白のクロスにして居間の天井にトップライトが付いたことで明るくなりましたが、天井高くしたことで見えてきた「梁」。遊びに来る友達に何人も「こんな風に家もしたい!!」と言ってもらえるのもこの梁が見えるからかもしれません。明るく気持ちがいいリビングに以前よりも家族が居る様になったのも嬉しいことの一つです。
・パントリーも限られたスペースを最大限利用して配置したので、本当にたくさん収納ができて家事をするのにとても役立っています。
リフォーム担当者の声
■収納力■
・パントリー内を出来る限り利用できるよう冷蔵庫・食器棚・カップボード(電子レンジ、トースター)・小物棚を収納することでLDKスペースを確保する。
・テレビスペースも薄型である事を利用して玄関廊下から使用出来る収納を設け洗濯物や着替えなどを置くスペースとする。
・システムキッチンシンク下にゴミ箱を設ける様な仕様とする(奥様案)
■家事動線■
・玄関廊下からリビングに進入するドアの位置を変更することにより、キッチン⇔洗面所への移動が直線となりテレビを見ている人を跨がないようにする。
・今まで緑側にあった着替え置場をテレビ裏に設けた収納に入れておくことで皆が使いやすい様にする。(奥様案)
■明るい空間作り■
・天井を高くトップライトを設置することで、一番家族が居る空間を明るくする。
・間仕切りや建具上のたれ壁を強度に支障がない様撤去することで、より家族との距離感を少なくする。
■安全性■
・お母様の今後を考え子供部屋以外をバリアフリーとし、いずれ手すりが付けれるように壁内に下地を入れておくなど配慮します。
・子供部屋のスペースを少し利用して設けたPCスペースは忙しい奥様が1歳のお子さまを気にしながら安心してPCを使用出来るようオープンスペースに設置する。










