西尾市 M・O様 性能向上リノベ住宅 ZUTTO
| お客様のご要望 | このリフォームを行う直前まで父を介護していました。 建物の老朽化と家族構成の変化に伴い、これからの生活を見据え「介護に備えたリフォーム」を希望します。 ●介護が必要になったときの使い勝手を考えた水回りにしたい。 ●起伏の激しい坂道や玄関に至るまで段差だらけで危ない。 ●居間から水回りが遠いので、動線を短くしたい。 ●できる限り予算を抑えたい。 |
|---|
|
施工事例データ
| 住所 | 愛知県西尾市 |
|---|---|
| 施工箇所 | LDK・浴室・WC・洗面・玄関・外壁・外まわり・窓 |
| 住宅形態 | 戸建て |
| リフォーム面積 | 68.3㎡ |
| 施工内容 | キッチン・浴室・WC・洗面リフォーム、間取り変更、外壁リフォーム、スロープ |
| 費用 | 約960万円 |
| 工期 | 約45日 |
| 築年数 | 38年 |
| 使用商材 | WC(TOTO:ピュアレストQR)洗面(TOTO:Vシリーズ)浴室(TOTO:サザナ)金属建具(YKKap:フレミングJ)天井壁床(サンゲツ・イクタ) |
| ご提案内容 |
●段差の解消、手すり取付、建具を引き戸で一回り大きな引戸や腰掛付きの浴室を配置し、老後の安心生活を提案。 ●起伏の激しい立地になめらかなスロープを作成。 ●大幅な間取り変更により、生活動線の見直しを提案。 ●外壁塗装や玄関土間の工事をご主人様のご希望でお手伝い頂きました。 |
|---|
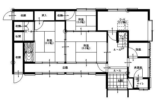
施工前はこちら
リモデル前の図面
普段過ごしている居間からサニタリーへのアクセスに不便を感じていました。
これまでは気にならなかったちょっとしたことが障害へ感じるように。
ゆい・リビングによる施工中の様子
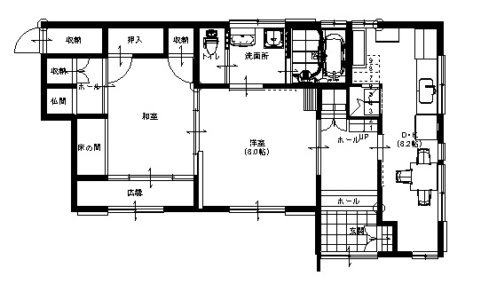
施工が完了しました
リモデル後の図面
将来介護が必要になっても使い勝手の良いトイレ、洗面、お風呂、リビング、4つの部屋が直結した間取りに。大きな開口を設けたので車いすでもラクラクです。
リビングから水回りへは直結。横幅の大きな引戸で繋がります。
玄関土間もご主人が仕上げて下さいました。
玄関ホールもバリアフリーに。
ユニバーサルデザインのシステムバス。
なだらかな玄関スロープ。外壁はご主人が手伝って下さりコストダウン!
リフォームされたお客様の声

◆孫がよく遊びに来るようになりました。段差を無くしたり、全て引き戸にしたことで、孫たちにとっても快適で安心して遊ばせることが出来る家になっていました。走り回って楽しそうにしている姿を見て、幸せな気持ちになれます。
◆外の石階段に注意しながら家に入っていたのですが、スロープのおかげで足元を見なくともスムーズに家に入れるようになりました。
◆暮らしやすく、安心・安全な家になりました。水回りは介護が必要となった時も広々使えます。引き戸を開けてリビングとも一体的になるので開放感や風通しがあるのと、スムーズな動線と水回りへの温度のバリアフリーが実現しました。耐震補強を行ったことも大きな安心感につながっています。※温度のバリアフリー→温度差のない住まいのこと
◆予算の問題から、外壁塗装や玄関など自分で作業させてもらいましたが、本当に楽しく、自分で仕上げた部分は一層愛着があり、お気に入りの部分です。予算も抑えられましたし、一石二鳥です。
リフォーム担当者の声

●離れて暮らすご家族に迷惑をかけないよう、老後2人でも不便なく暮らしていきたいとご相談を頂きました。
●段差解消、全引戸採用、手すり取付、スロープの造作を中心に将来、車いすや介護が必要になったときでも快適に暮らせるよう細かい部分に気を使いました。
●家では、ほとんどの時間をリビングで過ごすというご夫婦。以前は、リビングから水回りへの移行の際、気温差や距離、建具の多さに不便を感じておられました。
●そこで、リビング、トイレ、洗面、お風呂を直結させることで、最短距離で移行ができるようになりました。
●全ての建具を開放しておけばリビングとのワンルーム化が可能で介護時にも便利になります。
●トイレの音や臭いについても配慮された間取りとしています。










