西尾市 M・N様 お化粧リフォーム き・ら・り
| お客様のご要望 | ・娘夫婦との同居に際し、生活空間を分けたい。 ・家族全員で食事をしたいが今のダイニングキッチンでは狭く暗い。皆でゆったり過ごせる明るく広いダイニングがほしい。 ・物置となっていた1F和室を有効利用したい。 ・古く狭いトイレも気になります。この機会に素敵なトイレにしたい。 |
|---|
|
施工事例データ
| 住所 | 愛知県西尾市 |
|---|---|
| 施工箇所 | LDK・水まわり・玄関 |
| 住宅形態 | 戸建て |
| リフォーム面積 | 1階 168.48㎡→79.11㎡ 2階 100.29㎡→109.17㎡ |
| 費用 | 約1,500万円 |
| 工期 | 約67日 |
| 築年数 | 32年 |
| 使用商材 | キッチン(TOTO:クラッソI型)天井壁(サンゲツ:リザーブ)床(ブルズ:ハイパージオ)ドア(パナソニック:ベリティス)トイレ(TOTO:ピュアレストEX/レストパル) |
| ご提案内容 |
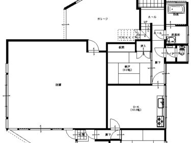
・1Fはお父様が過ごされる空間。2Fは若世帯の空間とし水廻りも一新しましたが、家族が集えるようにメインリビングは1Fに共通の空間としました。 ・和室と廊下の一部はダイニングキッチンと一体の空間にすることで明かりを取り込み、ご家族がゆったり集える広さにしました。 ・小便器を撤去し、1つの空間とすることで広いトイレとなりました。 |
|---|
施工前はこちら


暗いダイニングキッチンスペース
いつもドアを開けて廊下からの明かりを取り込んでいました
小便器があることでトイレは狭い空間に
2Fの和室も物置きとなっていました
家族が増えるので今の下駄箱のままでは収納不足
施工が完了しました


1階
廊下の窓を取りこんだ事でとても明るくなりました
全体が見渡せるお気に入りのキッチン
明るく広く生まれ変わったLDK
黒色のタンスは娘夫婦から貰った新婚旅行のお土産
2階
使っていなかった和室が新生活を送るLDKに これからたくさんの想い出を築いていきます
明るい部屋にはシックに調和するこだわりの家具
夜遅くなっても気兼ねなく使えるサブキッチン
照明の模様が素敵な空間を演出
見違えるほど明るくなった玄関。北側にある玄関は暗くなりがちですが、玄関ドアを交換し床・壁は白くすることで明るくなりました。
リフォームされたお客様の声
【お父様】
・今まで昼夜関係なく電気をつけて明るさを確保していましたが、廊下だった窓から入る陽により、日中電気をつけることは無くなくなりました。無駄な電気を使わないので家計が助かっています。
・部屋が明るいととても生き生きした気分になります。夕食は僕の担当ですが、家族の顔を見ながら料理が出来ることに幸せを感じています。
【若世帯】
・仕事で遅くなっても、2Fにお風呂、サブキッチンを新しく設けた事で、父と生活リズムが違っても気兼ねなく使えるようになり、お互いに無理することなく過ごせるようになりました。
・料理する元気な父の姿を見れるのはとても安心です。父の料理は愛情いっぱいで、健康面を気遣ってくれるので私たちの元気の源となっています。
リフォーム担当者の声
物置となっていた和室は、ダイニングキッチンと一体化し広さを確保しました。
廊下の窓をダイニングキッチンに取り込むことで光量を確保。且つ既存の窓も活かす。
部屋全体が明るくなり、十分な明るさと広さを確保することがききました。










