心機一転、叶う
| お客様のご要望 | 子供が全員巣立ったので生活と気持ちを心機一転したい! 1. 水回りの動線が使いにくく、一度廊下に出ないといけないのが不便です。もう少し近くに洗濯機や洗面が欲しいです。 2. 洗面所が狭く寒いため、暖かい空間にしてほしいです。洗面所に今ある流し台は荷物を置くスペースと化していて、廊下に洗面台がある状態です。 3. 今はアルミの窓枠で結露が発生しているので、カビやダニなどの発生が心配です。また結露が発生すると掃除の手間がかかるので、なるべく発生しないようにしたいです。 |
|---|
|
施工事例データ
| 住所 | 愛知県西尾市 |
|---|---|
| 施工箇所 | キッチン・リビング・浴室・トイレ・洗面所 |
| 住宅形態 | 戸建て |
| リフォーム面積 | 76.39㎡ |
| 施工内容 | 性能向上リフォーム、バリアフリーリフォーム |
| 費用 | 約1114万円 |
| 工期 | 約44日 |
| 築年数 | 26年 |
| 使用商材 |
【キッチン】キッチン:TOTO(ザ・クラッソ)天井・壁・床:サンゲツ(ビニールクロス)窓:YKKap(プラマードU) 【トイレ】トイレ:TOTO(ネオレストRS)天井・壁:サンゲツ(ビニールクロス)床:サンゲツ(クッションフロア)) 【浴室】システムバス:TOTO(サザナ)窓:YKKap(プラマードU)) 【洗面所】窓:YKKap(プラマードU)天井・壁:サンゲツ(ビニールクロス)床:サンゲツ(クッションフロア) |
| ご提案内容 | ご持参されたリフォーム工事リストに基づいてヒアリングしたところ、水回りの動線が悪かったり、洗面所が狭いとの事でした。そこで、LDKから直接洗面所に行けるアイディアを提案。廊下を利用しスペースを確保しました。動線が繋がることにより、温度差も最小限に抑えられる事をお伝えしたところ、気に入っていただき工事の決め手となりました。 |
|---|
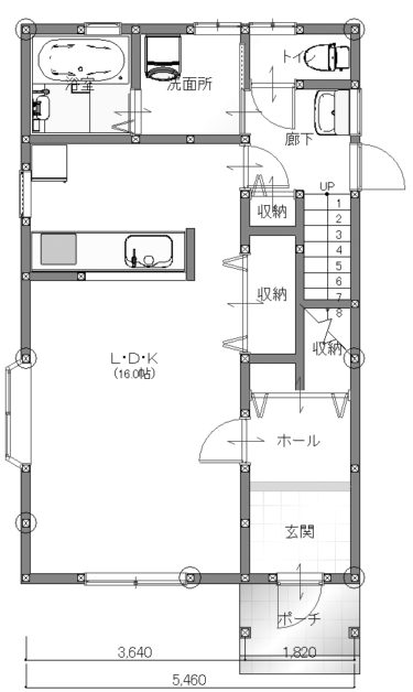
施工前はこちら
施工前図面
洗面所が廊下に
生活スタイルが変わると欲しい環境も変わりました
吊り棚でキッチンが暗い印象
システムバスでも冬は寒く
故障個所がありながら も使い続けたトイレ
ゆい・リビングによる施工中の様子
施工が完了しました

LDK
白色を基調とし、キッチンには新芽のような優しいアクセントの
スプリンググリーンを。ダイニングチェアや観葉植物でグリーン
が溢れたLDKに。キッチンからの眺めは以前よりも開放的になり
ました。
洗面所
洗面台を広く設け、メイクやセットがしやすいように。 以前の手狭な洗面台から解放されました。
洗面台を広く設け、メイクやセットがしやすいように。 以前の手狭な洗面台から解放されました。
洗面台の幅を広くすることで、メイクやヘアセットがしや すく!また、下が空いているため椅子も置けちゃう。
階段下
もちろんバリアフリーのため、 いつも住まいが「キレイ」をキープ!
もちろんバリアフリーのため、 いつも住まいが「キレイ」をキープ!
浴室
LDKの空気が流れてくるため 洗面所 階段下 ヒートショック防止に貢献。
LDKの空気が流れてくるため 洗面所 階段下 ヒートショック防止に貢献。
トイレ
トイレのアクセントには柔らかい 印象のエールピンクを使用。
トイレのアクセントには柔らかい 印象のエールピンクを使用。
リフォームされたお客様の声
1. 以前は一度廊下に出てからではないと洗面台に行くことができず、LDKから直接行ける間取りになったので使いやすくなりました。また、お風呂を出た後もヒートショックになる心配が軽減されました。
2. 洗面所が広く明るくなりました。以前置くことができなかった洗面カウンターが置け、鏡を大きくしたので、メイクやヘアセットをする際にとても便利で気に入っています。また、LDKの空気が洗面所に流れるため暖かくなり快適に使えるようになりました。
3. 内窓を設け樹脂の窓枠にしたことにより、結露がなくカビの心配がなくなりました。掃除の手間が減りそうで嬉しいです。内窓を設けてよかったと思いました。










