主人の心を動かしたLDKリノベーション
| お客様のご要望 | ①ずっとキッチンまわりをリノベーションしたいと思っていました。背をむけて家事をするのに少しさびしさを感じています。収納場所も限られストック品は別の部屋に保管しています。取りに行く手間を無くしたいのでLDK化にしてたくさん収納が欲しいです。 ②ソファーもう必要ないかな。でも安らげる空間はほしい。畳があったら嬉しいな。暖かな空間を求めますが、風も入れたい。欲張りですが、そんな事は可能ですか。 ③孫が喜んで遊びにきてくれる空間にしたいです。 |
|---|
|
施工事例データ
| 住所 | 愛知県西尾市 |
|---|---|
| 施工箇所 | LDK |
| 住宅形態 | 戸建て |
| リフォーム面積 | 25.6㎡ |
| 施工内容 | 高性能リフォーム、性能向上リフォーム、バリアフリーリフォーム、古民家スペース |
| 費用 | 約600万円 |
| 工期 | 45日 |
| 築年数 | 32年 |
| 使用商材 | 【LDK】キッチン:TOTO(ザ・クラッソ) /床・壁・天井:ビニールクロス(サンゲツ)/窓:YKKap内窓(プラマードU) |
| ご提案内容 |
①対面キッチンをご提案。収納についてもお施主様と細かな打ち合わせを重ねより良い空間になるようにしました。また、LDKにする事で段差も解消されバリアフリーになることもご説明。 ②畳コーナーはイメージし易いように設計図をお渡し、角を取り除き柔らかいデザインに。高さはシミュレーションして決定しました。勝手口はドアを閉めたままでも風を採り込める採風機構の物をご提案。 ③将来を見据えながら、お孫さんも安心して過ごせるように滑りにくい床材をご提案。 |
|---|
施工前はこちら
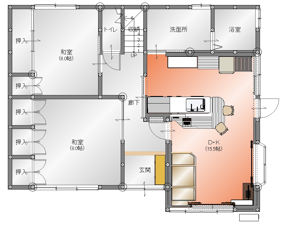
施工前図面
敷居があり段差が気になります。
壁に向って食事をしていました。
窓がたくさんで明るい反面、寒さを 感じます。
デットスペースの多いL型キッチンでした。
ゆい・リビングによる施工中の様子
床断熱施工後
天井・壁断熱施工後
カウンター造作
小上り収納造作
年間を通して快適に過ごせるように、高気密・高断熱化。
施工が完了しました
施工後図面
会話弾む明るいキッチンは腰壁高さにもこだわりデザイン性にこだわりました。
ゆったり過ごせる1番大好きな場所です
収納力抜群の畳コーナー
収納も使いやすい設計にこだわりました
ゆとりある通路幅で快適に使えます
家事をしながらテレビを見れるのは嬉しいです
内窓のおかげで温室空間に。
カウンター下にはご主人様専用のボトルラック。
趣味の裁縫をカウンターで終えた後は、 畳空間で休憩するのが奥様の日課。 安らげる空間を目指しました。
共通の居場所
リフォームされたお客様の声
①念願の対面キッチン。自然と主人との会話も増え、キッチンに立つ時間が楽しくなりました。
LDK化した事で、空間に余裕が出来とても明るくなりました。
収納もたくさん増え欲しいときに手の届く所にあるので、作業効率も良くなった
と実感してます。
②小上り収納に畳空間。私の願いが形になって驚きました!
収納力もあり、小物がすぐ取り出せるニッチも素敵です。
カウンターで趣味を楽しんだ後、畳コーナーで大好きな観葉植物を眺めて休憩で
きる時間が私の癒しとなっています。
断熱した事で部屋の涼しさが保たれている事も実感。冬が楽しみです。
風通しをしたい私の願いも叶えてくれ、大満足のリノベーションとなりました。
③この夏、孫が遊びに来てくれました。婆ちゃん家どう?と尋ねたら
「めっちゃイイ感じ♪」と褒めてくれました。
畳コーナーがお気に入りの場所で、上手に遊んですごしていました。
孫が喜ぶ顔を見て、自分達+孫も喜ぶリノベーションになりました。
④正直あまり乗り気でははなかったのですが、自分だけの何かってとても嬉しい事でした。
リノベーションやってよかったと思いました!(ご主人様)










