西尾市K・S様邸 お化粧リフォーム き・ら・り
| お客様のご要望 | 家に隣接した工場を営んでいます。少し前までご主人様のご両親が住んでいた家を新たな住まいにできませんか? ・たくさんの陽が当たるリビングにしたい。 ・仕事をしながらの生活なので、私たちの生活に合わせ、 老後も暮らしやすくゆっくりできる家にしたい。 ・木の温もりを感じられる内装にしたい。 |
|---|
|
施工事例データ
| 住所 | 愛知県西尾市 |
|---|---|
| 施工箇所 | LDK、トイレ、浴室洗面、玄関廻り、外回り |
| 住宅形態 | 戸建 |
| リフォーム面積 | 90.3㎡→93.6㎡ |
| 施工内容 | 間取り変更、キッチン洗面浴室トイレ交換、ウッドデッキ、玄関交換、床天井壁やり変え |
| 費用 | 約1800万円 |
| 工期 | 約85日 |
| 築年数 | 26年 |
| 使用商材 | キッチン(LIXIL:アレスタ)洗面(LIXIL:ミズリア)トイレ(LIXIL:サティス)床(DAIKEN:ハピアフロア・フローリング) |
| ご提案内容 |
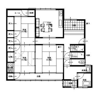
・採光の良い縁側の 空間を利用し、南側にLDKを移動しま した。 ・水まわりを工場側へまとめ、老後でも 不便のないよう1階で生活が完結で きる設計としました。 ・リビングを中心に無垢材を採用し、木 の温もりに包まれる内装を心掛けました。 |
|---|
施工前はこちら

南側の和室を以前はリビングとして使っていました
日当たりの悪いキッチン
段差や寒さを感じるトイレ
狭く暗い洗面所
寒く段差のある浴室
日当たりの良い縁側
庭は緑が多すぎる、とのこと
ゆい・リビングによる施工中の様子
施工が完了しました

日当たりの良い、南面の和室だった場所に新しくLDKを配置しました。
日当たり抜群。8畳二間の和室の仕切りを取り、空間をめいっぱい使ったLDKへ
ゆったり使用できる広さのトイレ。階段下を利用した収納も。
玄関は大きな収納と手すりが付きました。
無垢(ヒノキ)の香りが訪問者をお迎え。
お庭は綺麗に整備しました。これからはLDKから眺めることができます。
広々で清潔感ある洗面所
リフォームされたお客様の声
・家族が自然とリビングに集うようになりました。
・トイレや洗面所も空間的に余裕があり、ゆったり使用できるようになりました。
・洗面と洗濯機は別々。洗濯スペースはとても便利で、洗濯機から出してすぐ干せるようになりました。屋内にも物干しがついているので、どんな天気でも干すことができます。
・LDKはとても日当たりが良く、くつろげる空間です。そして、リフォーム前不便だったお風呂洗面の使い勝手も、リビングと直結しているので冬場戸を開けっ放しにしておくとあまり温度差も無く、家事動線もスムーズになり以前感じていたストレスがなくなりました。
・家のリフォームは憧れつつも会社で手いっぱいだったので後回しになっており、今回のリフォームは、夢が叶った思いでした。子供たちも、落ち着いてくつろげるような家になってよかったです。
・1階に寝室があるので将来1階のみで生活することになっても安心しています。
リフォーム担当者の声
・以前はお施主様のご両親が住んでいたこの家。新しく若世帯が住まわれるということで、ライフスタイルに合わせ、将来を見据えた家をご提案。
・隣接する家の横にはお客様が営む工場があり、日々お忙しく過ごされていました。「ようやく、念願だったリフォームができます」と一息つける思いを感じ、これからは「気持ち」も「空間」もゆとりをもってくつろげる住まいをご提案しました。










