西尾市 Y・K様 お化粧リフォーム き・ら・り
| お客様のご要望 | ・2階建ての車庫を新しい住まいにしたいです。 ・共働きなので不便なく家事を快適にこなしたいです。 ・いずれ家族が増えても広々使えるようにしたいです。 ・庭が無いので、2階に洗濯物を干したいです。 ・収納はたっぷり設けたいです。 |
|---|
|
施工事例データ
| 住所 | 愛知県西尾市 |
|---|---|
| 施工箇所 | 全面、外壁 |
| 住宅形態 | 戸建 |
| リフォーム面積 | 57.1㎡→57.1㎡ |
| 施工内容 | 倉庫を住居へ、間取り変更、キッチン浴室洗面トイレ新設、内装やり変え |
| 費用 | 約1130万円 |
| 工期 | 約61日 |
| 築年数 | 20年 |
| 使用商材 | キッチン(TOTO:クラッソ)浴室(TOTO:サザナ)洗面(TOTO:サクア)トイレ(TOTO:ピュアレスト)天井壁(サンゲツ)金属建具(YKKap:フレミングJ) |
| ご提案内容 |
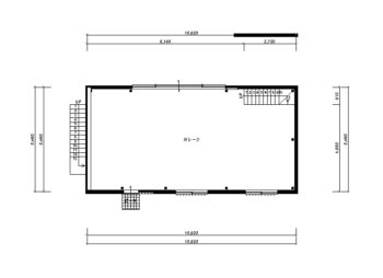
・住宅の基礎となる機能 「防音」「断熱」「採風」「採光」を取り入れました。 ・快適な家事実現の為、回遊性のある間取りを取り入れました。 ・1階は廊下をつくらず建具も最低限とし、空間めいっぱいの広いLDKとしました。 ・2階の日当たりの良い場所に物干し部屋を設けました。 ・玄関からキッチンへウォークスルー型の大容量のパントリーを設けました |
|---|
施工前はこちら

1階は奥様のご実家の倉庫。
2階は普段は使っていない住居スペースでした。
施工が完了しました

一番のポイントは1Fも2Fも回遊性ある間取りにし、家事動線に配慮したこと。何もない倉庫だったからこそ、自由な設計とアイディアを組み込めました。天井の高さは限度がありましたが、明るい内装でそれを感じさせません。
PCスペースや階段下のデッドスペースを利用した収納を設けるなど「暮らしやすさ」にも配慮しました。ニッチや柄入りクロスなどデザイン性もこだわり、お客様も満足な家になりました。壁には奥様の好きなフクロウモチーフの時計。
キッチンは家族の気配を感じれるLDKの真ん中に。
小窓や、採光性のある玄関扉を採用し明るい玄関を実現。
玄関⇔キッチンがウォークスルー型のパントリー。2坪の大容量サイズ。
家族の幸せを願うふくろう(不苦労・福朗)柄のトイレ。
お庭が無くても干す場所に困らないランドリールーム。干す、畳む、しまうといった一連の家事が済みます。
リフォームされたお客様の声
・キッチンが家の中心にあるからか、使ったタオルをすぐに洗濯機に持っていけたり家事動線が短くなりました。
・ランドリールームはとても便利!ライフスタイルや天候に左右されず、洗濯物をに干してから仕事に行けるようになりました。洗面所にもポールが2本あるのが良いですね。(奥様)
・間取り上でしょうか、家に帰ると料理中でも妻がすぐに出迎えてくれるようになり嬉しいです。また、玄関に入ってすぐパントリーやクロークがあるので、LDKまで物を持ち込まなくて済み、掃除がしやすくなりました。(ご主人)
・キッチンもリビングもよく陽があたり風通しもよく住み心地抜群です。
・クロスの柄やガラスブロック、ニッチも沢山取り入れてもらったので、デザイン面でのお気に入りポイントもいっぱいです。トイレは、家族の幸せを願って、縁起の良いフクロウ柄のクロスを選びました。夫婦2人で選んだそれが一番のお気に入りです 。(奥様)
・「正直この間取り以上の間取りは思いつきません!(笑)」と担当者さんに言われ即決しましたが、実際本当に暮らしやすく、無駄のない間取りだと感じています。この場所が倉庫だったなんて信じられません。新築気分です!本当にリフォームしてもらってよかったです。(ご主人)
リフォーム担当者の声
・何も無い倉庫を「住宅」として利用するに当たり、日常生活に支障となる「防音」「断熱」「採風」「採光」という住宅に必要な機能を付加する必要性をお客様へお伝えし、設計に組み込んでいきました。
・共働きで日々お忙しいご夫婦。奥様は小学校の先生を務めながら家事もこなし時間に追われる日々をお過ごしでしたので、家事をするにあたり「動線」や「時短」、「収納」を提案しました。










