西尾市 Y・U様 性能向上リノベ住宅 ZUTTO
| お客様のご要望 | 出産を機に(奥様の)両親の家で同居することになりました。新生活に向けて快適に生活を送りたいです。 ・キッチン、リビングが昼間でも暗いので明るく気持ちよくしたい。 ・洗面、お風呂、キッチンが古く、狭いのでゆとりのある水廻りにしたい。 ・キッチンとリビングをつなげて一つの空間にしたい。 ・収納などに考慮しキッチン周りを使いやすくしたい。 ・主人がひとりで落ち着ける部屋が欲しい。 ・抑えられるところは、コストをなるべく抑えたい。 |
|---|
|
施工事例データ
| 住所 | 愛知県西尾市 |
|---|---|
| 施工箇所 | LDK、浴室洗面、他 |
| 住宅形態 | 戸建 |
| リフォーム面積 | 47㎡→47㎡ |
| 施工内容 | 間取り変更・キッチン洗面浴室交換・内装やり変え |
| 費用 | 約710万円 |
| 工期 | 61日 |
| 築年数 | 35年 |
| 使用商材 | キッチン(TOTO:クラッソ)浴室(TOTO:サザナ)洗面(TOTO:サクア)天井壁(サンゲツ)金属建具(YKKap:フレミングJ) |
| ご提案内容 |
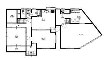
・リビングの窓を腰窓から掃き出し窓に変更、さらに天井を一部をこう配天井にし、2階の倉庫の窓から1階のリビングへ光を取り込むことで明るいリビングに。 ・洗面お風呂は広い間取りに。 ・キッチンは動線や収納を見直し、位置も風と光が通る場所に。 ・ガレージ横の物置をご主人様の書斎に。 ・以前使っていた建具で使えるものは再利用し、コストダウンを図りました。 |
|---|
施工前はこちら

ダイニングは昼間でも電気が必要な暗さでした。
リビングは南側の窓が小さく、光を取り込めていませんでした。
収納不足を感じます。
窮屈な印象のキッチン。
わずか1帖の洗面所。
お子様と入るには窮屈な浴室
ガレージの隣の個室は物置。
ゆい・リビングによる施工中の様子
解体をしたら丸太の梁が出てきました
施工が完了しました

昼間でも部屋全体が明るく気持ちの良い空間になりました。
リビングの天井は見た目も機能面もこだわりました。
仕切られた壁を取り払い、いつも家族を近くに感じるLDKになりました。
ダイニングにも柔らかな光が差し込みます。
キッチンは、料理する手元まで明るく、風も通る場所に。
ご主人の書斎はブラウンと白を基調に落ち着いた大人の空間に。
階段下のデッドスペースも活用して収納を作りました。
わずか1帖しかなかった洗面所が倍の広さに。
浴室も1坪に広くなりました。
キッチン家電の収納は、使いたい時にサッと家電を使えるカウンター型に.。
リフォームされたお客様の声
・とても明るいリビングになったので昼間は電気をつけなくて済むようになりました。
・キッチンの後ろに出入り口ができたので、車から荷物を運ぶときは必ず通っています。移動がとても楽になりました。
・お風呂、洗面が広くした分LDKが狭くなったはずなのですが、むしろ広々したように感じるのが不思議です。特にキッチン周りはとても余裕があり、冷蔵庫を2台置いてしまったほどです(笑)
・洗面所とお風呂が広くなったので子供とゆったり着替えたりお風呂に入ったりできるようになりました。
・思い出がつまった実家での新しい暮らしを始めるのに、一新することで今回のリフォームは良いけじめとなりました。
・部屋全体を見渡せるようになり、対面キッチンなので子供にも常に目を配れるような間取りになったのが嬉しいです。
・キッチン家電がスッキリしたこと、且つカウンター式になったので家族が使いたいときに使えて便利です。
・2階の物置の窓を利用して採光するアイディアは、部屋が明るくなっただけでなく見た目も梁がオシャレなのでとても気に入っています。
・勝手口やリビングの小窓は再利用したことでコストも抑えられましたし、見る度リフォームにしてよかったなという気持ちにさせてくれます。
・書斎は限られた広さでしたが、部屋の角や階段下のデッドスペースを利用した収納で空間を無駄にしてないところがいいですね。 主人が見当たらないときはだいたいこの部屋に居ます(笑)










