西尾市 A・Y様 お化粧リフォーム き・ら・り
| お客様のご要望 | 昼間でも電気をつけないと暗いキッチンを明るくしたい。南の客間の使用頻度が低いので壁を取ってLDKにしたい。私たちと生活リズムが違うため、お母さんの生活に支障が出ないような間取りを考えてほしい。 近所のパチンコ店に出入りする騒音を何とかしてほしい。 |
|---|
|
施工事例データ
| 住所 | 愛知県西尾市 |
|---|---|
| 施工箇所 | LDK、トイレ |
| 住宅形態 | 戸建 |
| リフォーム面積 | 119㎡→119㎡ |
| 施工内容 | 間取り変更、キッチン交換、トイレ洗面交換 サッシ交換、内窓取付 |
| 費用 | 約760万円 |
| 工期 | 約37日 |
| 築年数 | 22年 |
| 使用商材 | キッチン(TOTO:クラッソ)浴室(TOTO:サザナ)洗面(TOTO:サクア)トイレ(TOTO:ネオレスト)天井壁(サンゲツ)金属建具(YKKap:フレミングJ)樹脂建具(YKKap:プラマードU)床(南海プライウッド:アートフロア) |
| ご提案内容 |
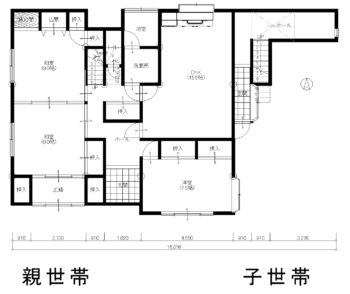
LDKとするために壁を取り除く事は容易ですが、耐震性と2階の配置によるバランスの重要さをお伝えし、露出で2箇所筋交いを配置させていただく事になりました。 元々2階へ上がる階段が2箇所あったため、お母様の生活空間側の階段を撤去し、水廻りを配置しました。 洗面所と浴室のみを共同空間としたことで、今までお互い気を使い合っていた生活リズムの問題を解消しました。 |
|---|
施工前はこちら

施工が完了しました

新しいLDKはリビングが広くくつろげる空間に
キッチンは清潔感のあるホワイト 収納もたっぷりです
空間のアクセントになるL字の梁
最新のトイレを設置しストレスフリーのトイレ
リフォームされたお客様の声
お母さんとの生活時間帯の違いも、お風呂の時間を調整するだけでお互い気持ちよく生活することができるようになりました。
南の道路側の窓に内窓を設置したことで、これまで気になっていた視線や騒音を防ぐことができ、安心して夜も生活することができています。
子ども達のお友達が良く遊びに来るようになり、リビングを走り回っている様子をみると、嬉しくて怒ることができません。笑
私達の友達も「いいなぁ」「いいなぁ」「すてき~」とお褒めの言葉を頂くたびに、リフォームしてよかった!と思っています。
今回のリフォームで、収納する空間を増やしていただいたお陰で、片付けをする時「しまえるって素敵!」と毎回思っています。
そして、リフォームしてからお母さんが生き生きと笑顔でいる姿を見て、付かず離れずの関係を実現できたのだとリフォームをやって良かったと思っています。
リフォーム担当者の声
【親世帯と子世帯の住み分け】
生活時間帯が異なるお母様と子世帯。一番気になるのは音ですが、家の中を完全に仕切ってしまう訳にはいきません。これらを間取りに落とし込むと、洗面所と浴室のみを共有部分にすることで住み分けることができます。
【キッチン空間を明るく】
北からしか光を取り入れることができない現状。南の客室との壁を取り除く事で問題は解決しますが、耐震性や2階の配置によるバランスを取るために、露出の筋交いを2箇所再配置。あこがれの広いLDKを実現します。
【南国】
若夫婦共通のご趣味がサーフィン。たくさん思い出の詰まった大好きな海のイメージを取り入れたいと言うお気持ちを、制作家具の形をサーフボードに見立てたり、観葉植物、絵画などでインテリアコーディネート。
生活時間帯が異なるお母様と子世帯。一番気になるのは音ですが、家の中を完全に仕切ってしまう訳にはいきません。これらを間取りに落とし込むと、洗面所と浴室のみを共有部分にすることで住み分けることができます。
【キッチン空間を明るく】
北からしか光を取り入れることができない現状。南の客室との壁を取り除く事で問題は解決しますが、耐震性や2階の配置によるバランスを取るために、露出の筋交いを2箇所再配置。あこがれの広いLDKを実現します。
【南国】
若夫婦共通のご趣味がサーフィン。たくさん思い出の詰まった大好きな海のイメージを取り入れたいと言うお気持ちを、制作家具の形をサーフボードに見立てたり、観葉植物、絵画などでインテリアコーディネート。










